MANOCOMB Pressure Switch Model TM
Pressure Switch, Pressure Monitor, Pressure Limiter, Safety Pressure Limiter for Pressure and Vacuum
with integrated pressure transmitter
- Description
- Technical Data
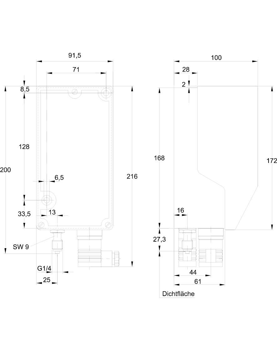
- Dimensions
- Electrical Data
- Order-Codes
MANOCOMB® Pressure Switch Model TM
• friction-free force-balance measuring system
• very high repeatability
• extraordinary long-term stability
• measuring ranges from -1... 0 bar up to 0 - 400 bar
• comfortable setpoint adjustment on calibrated scale
• optionally integrated pressure gauge
• approved as Pressure Monitor / Pressure Limiter
• integrated pressure transmitter
Description
The MANOCOMB®-TM is a precision pressure switch for measuring pressure, differential pressure and vacuum of gasous or liquid, also aggressive, chrystallizing and highly viscous media.
Operating Principal
The operation is based on force-balance - per change-over contact a metal bellow is available, which is opposed by a precison spring with an adjustable force.
Once the process pressure overcomes the set force the change-over is triggered.
The contact adjustment is done by removing the cover and turning the thumb wheel to the desired set point.
The set point adjustment can be comfortably read from the set point scale. No reference instrument is needed.
The measuring system, which actuates the switching contact works friction-free, resulting in minimal wear. No maintenance or spare parts are needed!
Integrated Pressure Transmitter / Integrated Pressure Gauge
The integrated pressure transmitter (0,5% FS) delivers a continues output signal (4 - 20 mA or 0 - 10V).
The optionally integrated pressure gauge (class 1.0) visualizes the actual process pressure right next to the set point indicator.
Approvals (depending on configuration)
• TÜV approval (VdTÜV Merkblatt Druck 100)
• Pressure Equipment Directive 97/23/EG
• GOST-R (Proof of Conformity with Russian quality standards and regulations)
Technical Data
| Switching Function | Description |
| 1K | 1x change-over contact |
| 1KA | 1x change-over contact, 1x integrated gauge |
| 2K | 2x change-over contact |
| 2KA | 2x change-over contact, 1x integrated gauge |
| Technical Data | Standard | Option |
| Function | mechanical pressure switch; force-balance measuring systems with bellows sensor; with integrated analogue output | |
| Life Cycle | at least 10 Mio switch cycles | |
| Pressure Ranges | 0 - 1 bar; 0 - 1,6 bar; 0 - 2,5 bar; 0 - 4 bar; 0 - 6 bar; 0 - 10 bar; 0 - 16 bar; 0 - 25 bar; 0 - 40 bar; 0 - 60 bar | |
| High Pressure Ranges | 0 - 100 bar; 0 - 160 bar; 0 - 250 bar; 0 - 400 bar | |
| Vacuum Ranges | -1…0 bar; | |
| Over Pressure Safety | 1,5x FS | |
| Vacuum Safety | -1 bar | |
| Housing Material | enhanced plastics with transparent cover | |
| Wetted Parts Material | brass; Al2O3 | Stainless Steel 1.4571 (AISI 316Ti); Al2O3 |
| Permissiable Media Temperature | -20...+80°C (+130°C in stainless steel version) | |
| Permissable Ambient Temperature | -20...+80°C | |
| Temperature Deviation | approx. 1% per 20°C | |
| Adjustment Temperature | 20°C | on request |
| Swicthing Contact | 1 or 2 switching contacts (SPDT) - for details see switching contacts overview | |
| Contact Adjustment Accuracy | < 1,0% FS | |
| Switching Differential (Hysteresis) | see switching contacts overview | |
| Repeatability | < 0,5% FS | |
| Analogue Output | 4 - 20 mA (2-wire) | 0 - 10 V (3-wire) |
| Supply for Analogue Output | 12 - 32 VDC | |
| Accuracy of Analogue Output | < 0,5% FS | |
| Accuracy of integrated Gauge | Class 1.0 (available for pressure range -1...0 bar / 0 - 1 bar...0 - 250 bar | |
| Process Connection | 1/4“ BSP male (EN837) | 1/2“ BSP male (EN 837); others on request |
| Electrical Connection | M20 cable gland; terminal blocks inside housing for cable 2,5mm² | ISO 4400 plug; Harting HAN7D/8U plug |
| Weight | approx. 1.5 kg (depending on switching function) | |
| Protection | IP65 | |
| Other Options | ||
| Scales in different units (e.g. MPa, kPa, psi, etc.); Dual Scale; Customer specific Scales; silicone free version; version for O2 service | ||
Electrical Data
Category AC-12 / DC-12
Switching Capacity
max. permissible continuous current Imax [A] with ohmic load
| Type | 24V | 48V | 110V | 240V | SD1 | |
| Standard | A (AC) | 5 | 5 | 5 | 5 | < 1,0 % |
| A (DC) | 1 | 0,5 | - | - | ||
| MG2 | A (AC) | 1 | 1 | 1 | - | < 1,5 % |
| A (DC) | 1 | 0,5 | 0,2 | - | ||
| MH | A (AC) | 5 | 5 | 5 | 5 | < 1,5 % |
| A (DC) | 1 | 0,5 | - | - | ||
| CS | A (AC) | 5 | 5 | 5 | 5 | < 2,0 % |
| A (DC) | 5 | 2 | 0,4 | 0,2 | ||
| CH | A (AC) | 12 | 12 | 10 | 10 | < 2,0 % |
| A (DC) | 10 | 2 | 0,4 | 0,2 | ||
| CZ3 | A (AC) | 5 | 5 | 5 | 5 | < 2,0 % |
| A (DC) | 5 | 2 | 0,4 | 0,2 | ||
1 typical switching differential (hysteresis) from 1 - 250 bar; Deviation in % of FS
2 micro switch with gold-plated contacts
3 micro switch with forced circuit opening
Order Codes
most common options
| Order Codes | M | 0 | 9 | x | x | x | - | x | - | x | x | x | |
| Switching Function | 1K | 0 | |||||||||||
| 1KA | 1 | ||||||||||||
| 2K | 2 | ||||||||||||
| 2KA | 3 | ||||||||||||
| Material | brass | 1 | |||||||||||
| stainless steel | 2 | ||||||||||||
| Switching Contact | Standard + 4 - 20 mA | 1 | |||||||||||
| MG + 4 - 20 mA | 2 | ||||||||||||
| Standard + 0 - 10 V | 8 | ||||||||||||
| MG + 0 - 10 V | 9 | ||||||||||||
| Pressure Ranges | -1...0 bar | 006 | |||||||||||
| 0 - 1 bar | 020 | ||||||||||||
| 0 - 1,6 bar | 022 | ||||||||||||
| 0 - 2,5 bar | 023 | ||||||||||||
| 0 - 4 bar | 024 | ||||||||||||
| 0 - 6 bar | 025 | ||||||||||||
| 0 - 10 bar | 026 | ||||||||||||
| 0 - 16 bar | 027 | ||||||||||||
| 0 - 25 bar | 028 | ||||||||||||
| 0 - 40 bar | 029 | ||||||||||||
| 0 - 60 bar | 030 | ||||||||||||
| 0 - 100 bar | 031 | ||||||||||||
| 0 - 160 bar | 032 | ||||||||||||
| 0 - 250 bar | 033 | ||||||||||||
| 0 - 400 bar | 035 | ||||||||||||
| Process Connection | G 1/4 B, brass | A | |||||||||||
| G 1/4 B, stainless steel | B | ||||||||||||
| G 1/2 B, brass | C | ||||||||||||
| G 1/2 B, stainless steel | D | ||||||||||||
| Electr. Connection | 1x plug ISO 4400 (4-pin) + 1x Stecker ISO 4400 (3-pin) - only 1K - only 4 - 20 mA | P | |||||||||||
| 2x plug ISO 4400 (4-pin) - only 1K | Q | ||||||||||||
| 1x plug 7-pin + 1x plug ISO 4400 (4-pin) - nur 2K | S | ||||||||||||
| Further Options | no further options | O | |||||||||||
| cleaned for O2 service | A | ||||||||||||
| cover lead-sealable | W | ||||||||||||